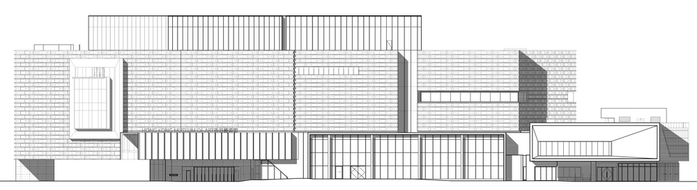
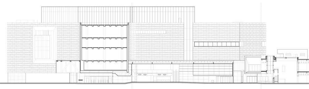
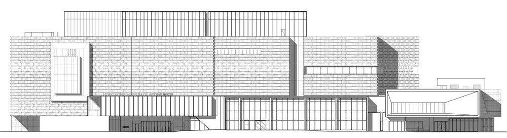
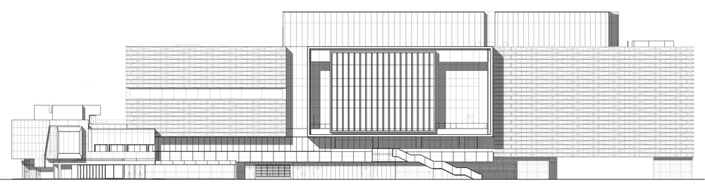
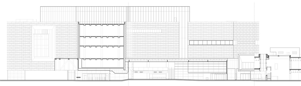
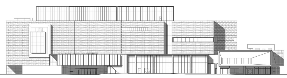
Museum of Arts Hong Kong

디테일

건물 유형
공공 건물
애플리케이션 유형
정면
도시
Kowloon
나라
홍콩
설계자
Architectural Services Department, Hong Kong SAR Government, Hong Kong, China
TE 10
특수 용도
3D, 특별한 쎼입
사진작가
iMAGE28, Daniel Wong

묘사

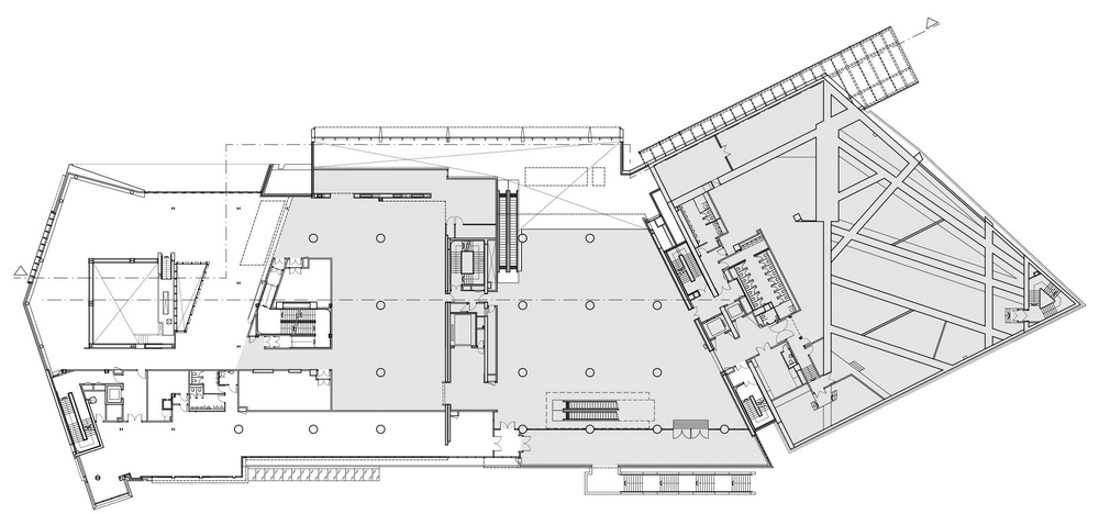
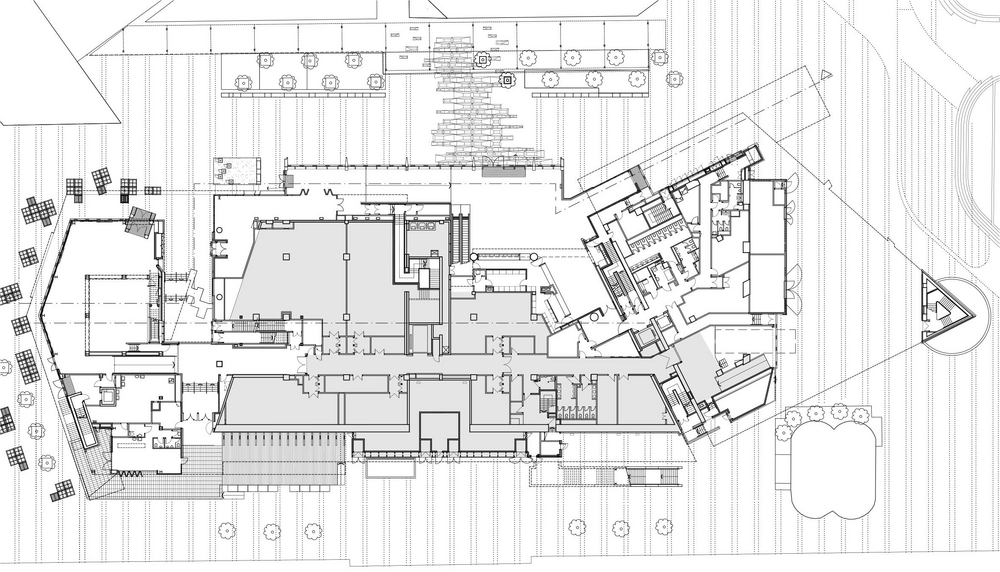
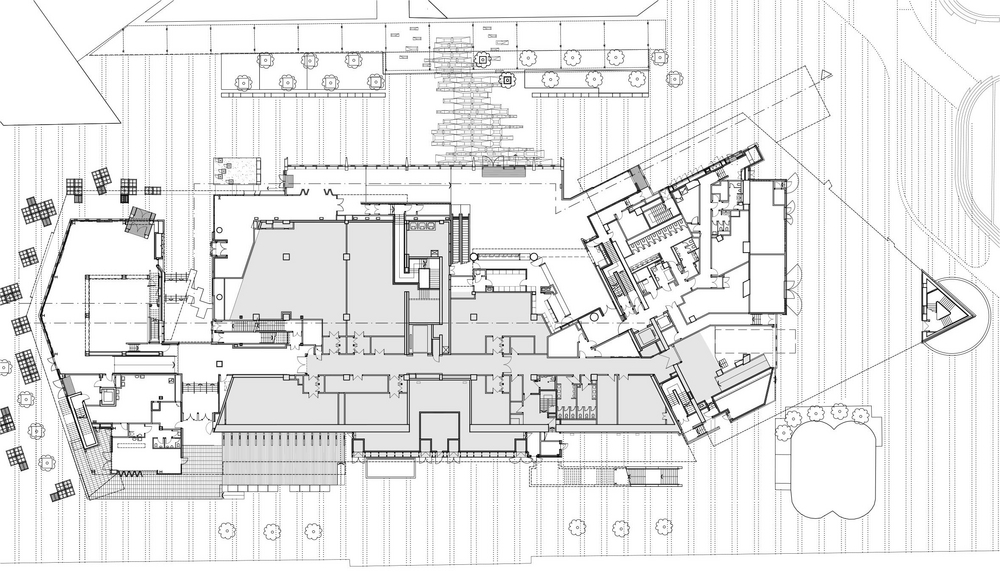
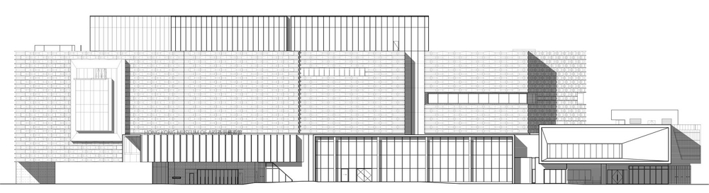
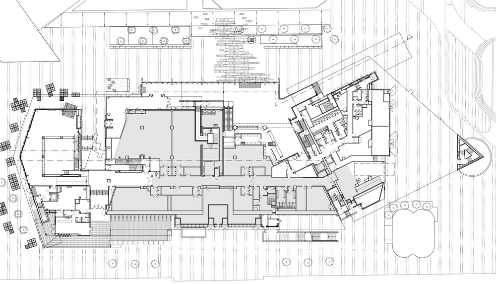
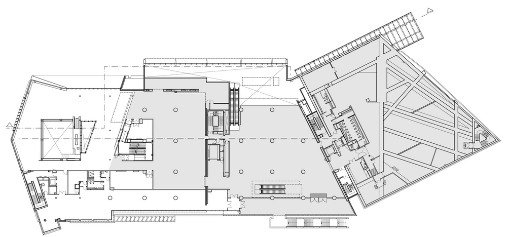
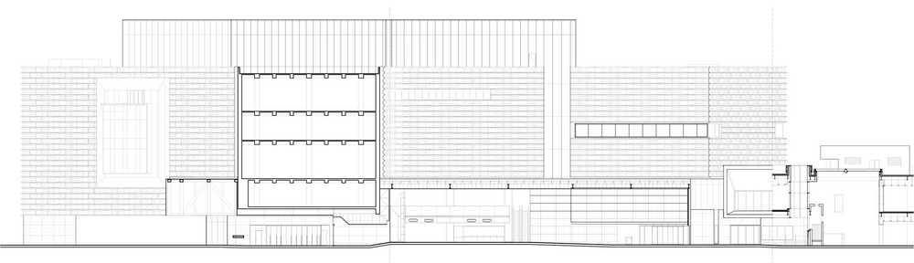
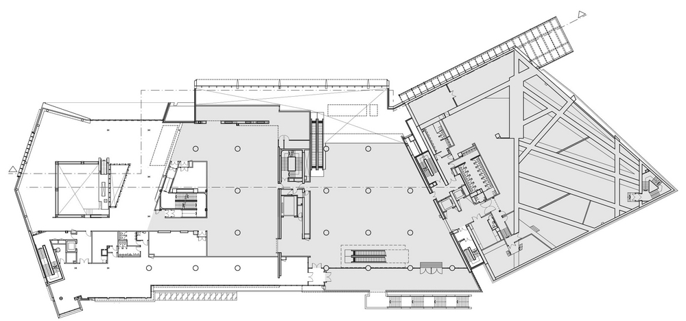
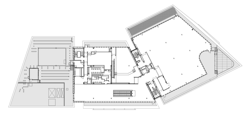
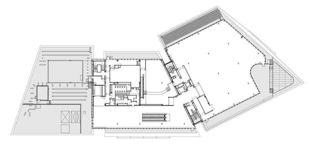
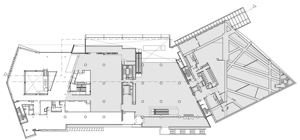
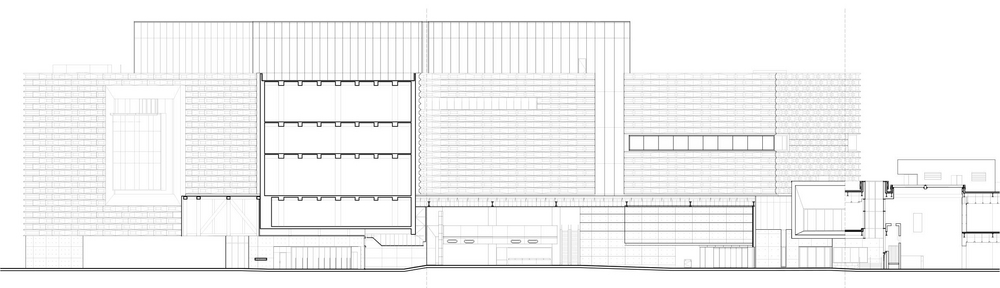
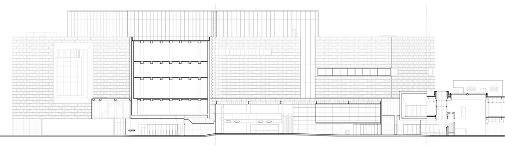
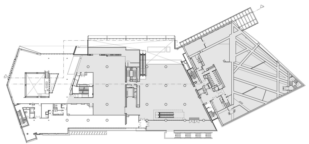
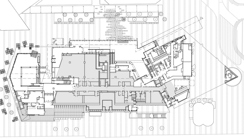
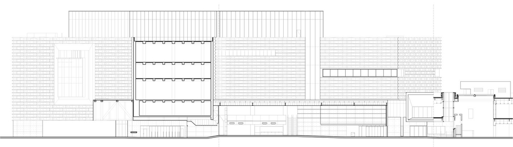
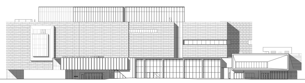
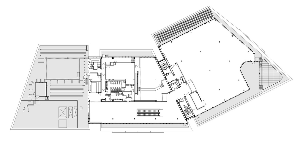
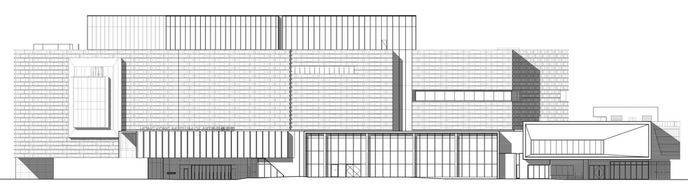
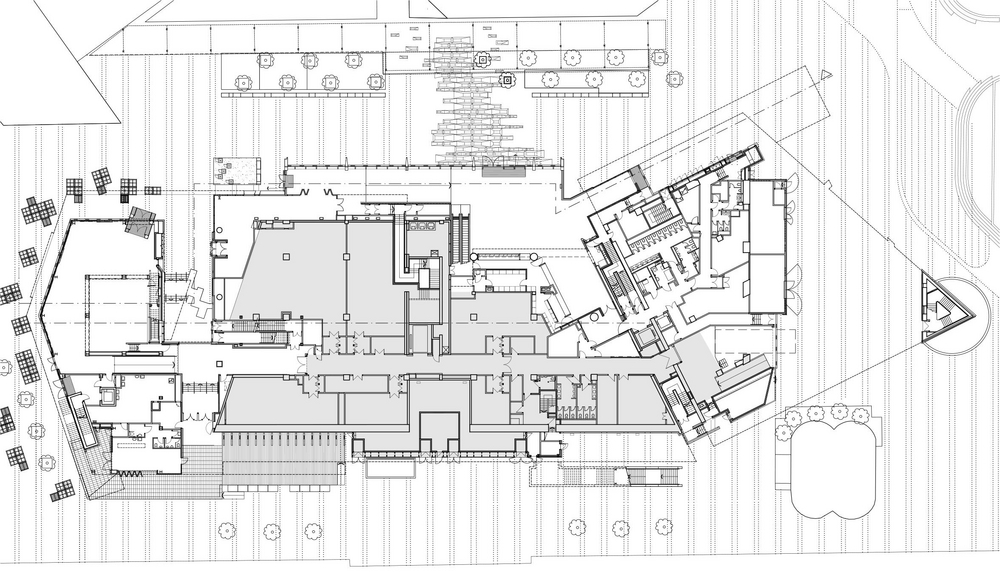
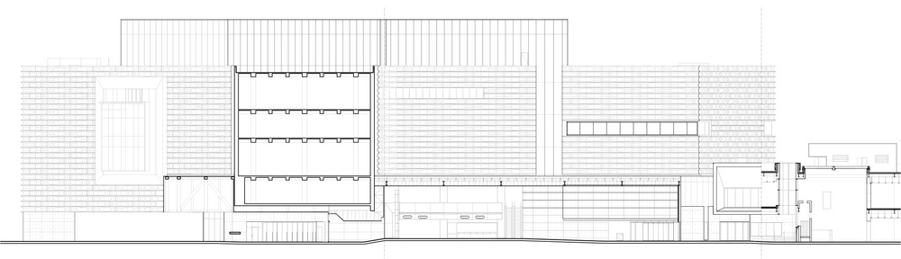
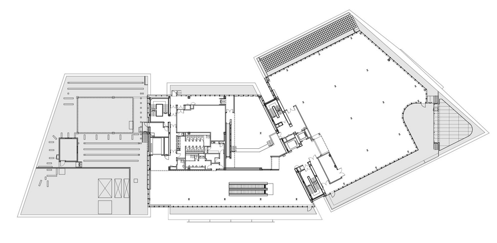
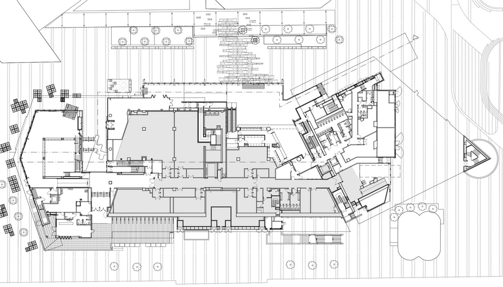
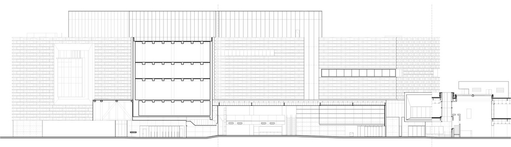
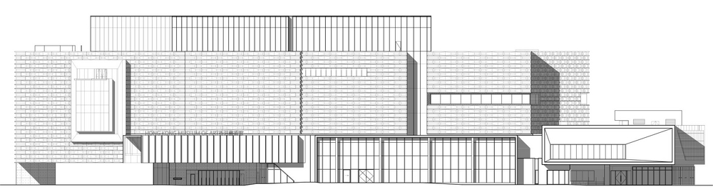
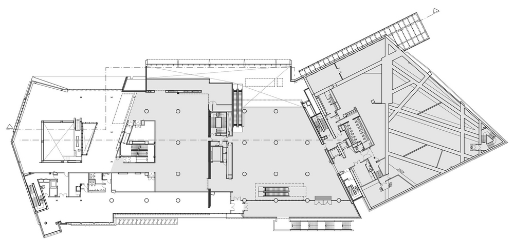
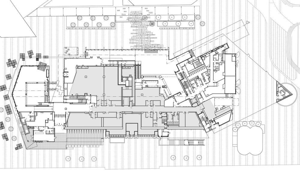
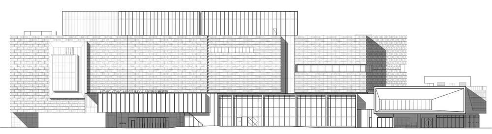
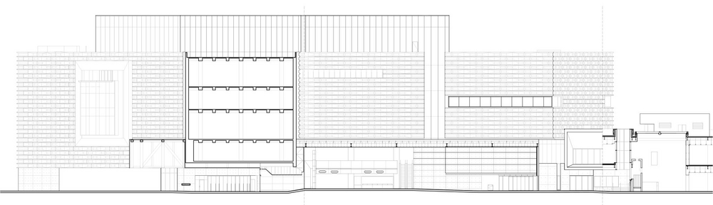
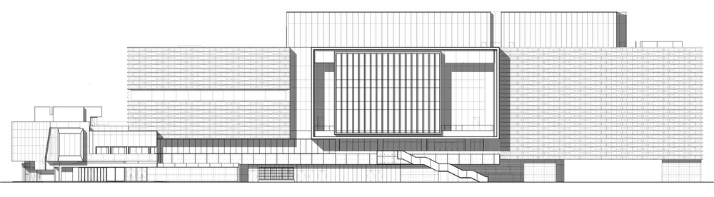
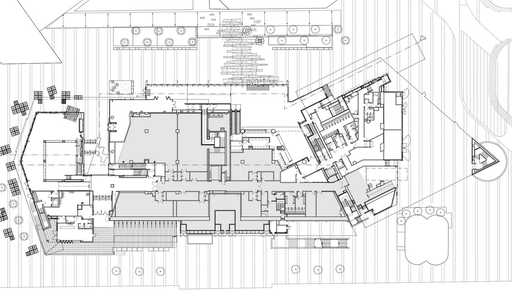
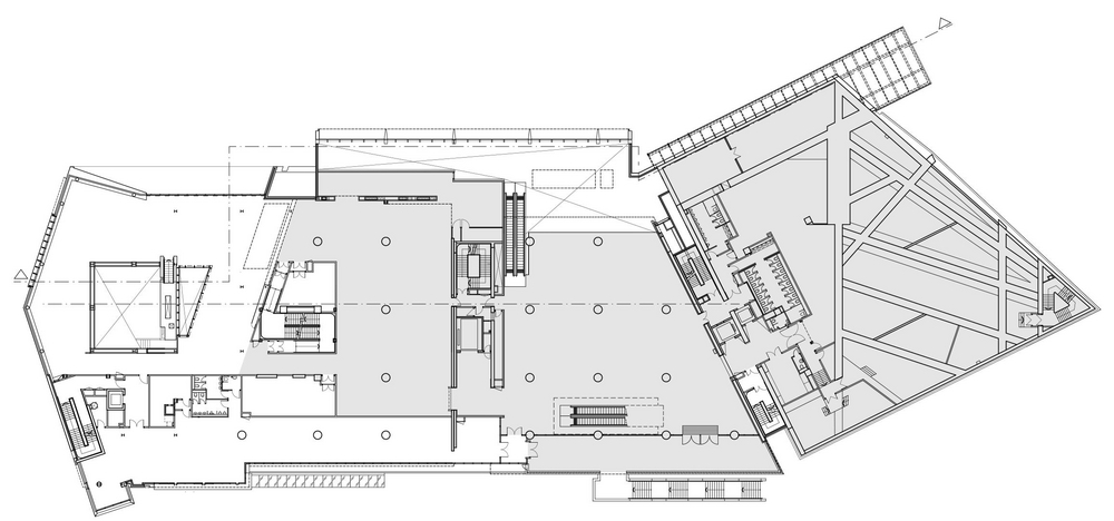
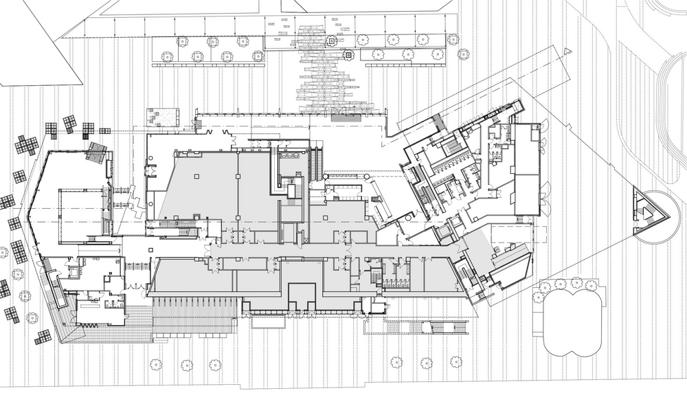
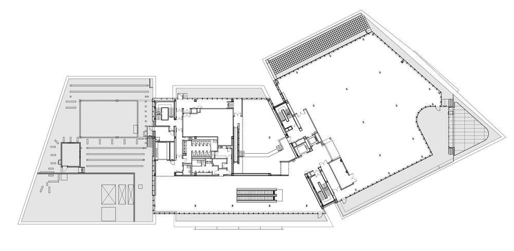
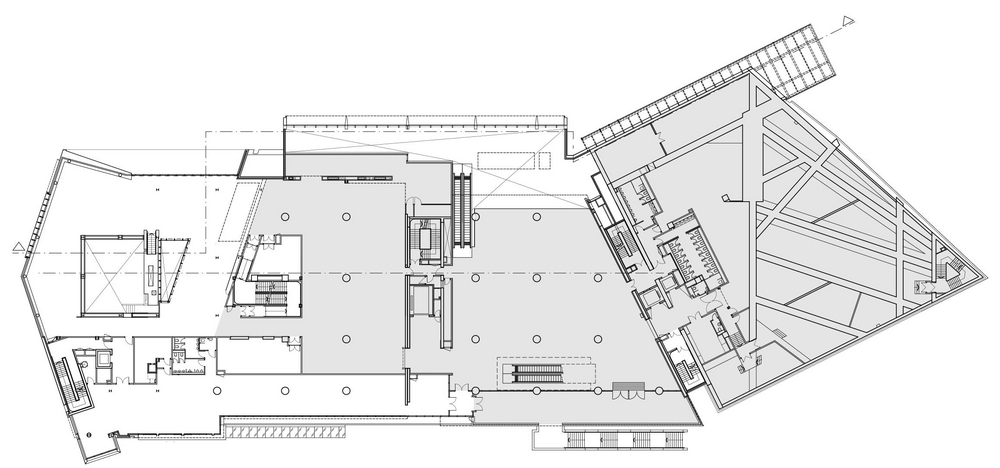
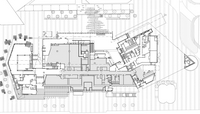
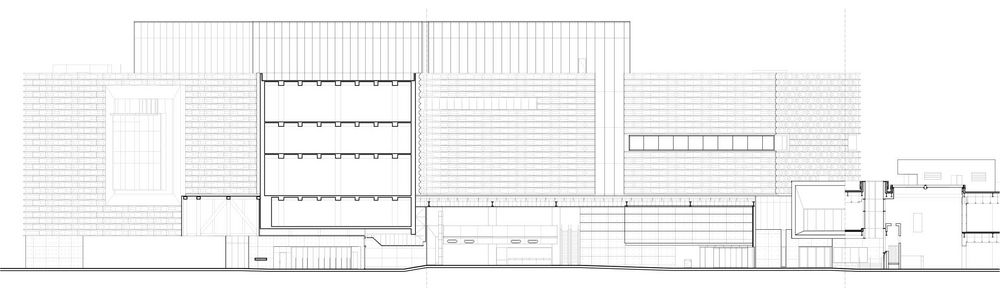
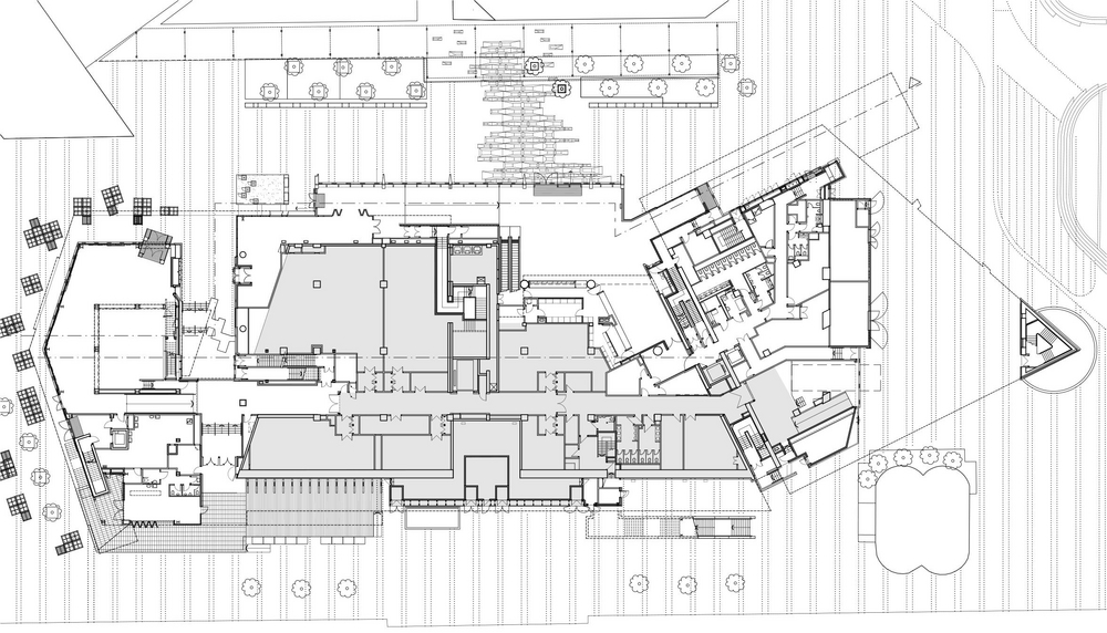
홍콩미술관 (HKMOA) 리노베이션 및 증축

홍콩 미술관은 (HKMOA) EQUITONE [tectiva] 패널을 사용하여 조립식 모듈을 갖춘 3D 파사드를 만들었습니다.

사용 된 재료

직접 만나보세요

직접 만나보세요
직접 만나보세요

EQUITONE 경험을 느껴 보고 싶으신가요?