Museum of Arts Hong Kong

Project details

Building Type
Public Buildings
Application Type
Facade
City
Kowloon
Country
Hong Kong
Architect
Architectural Services Department, Hong Kong SAR Government, Hong Kong, China
Colour
TE 10
Special applications
3D façades, Special Shape
Photographer
iMAGE28, Daniel Wong

Project description

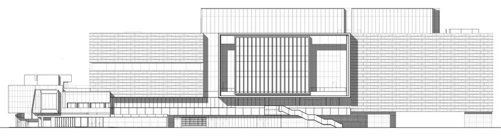
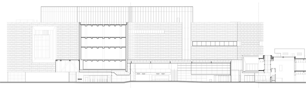
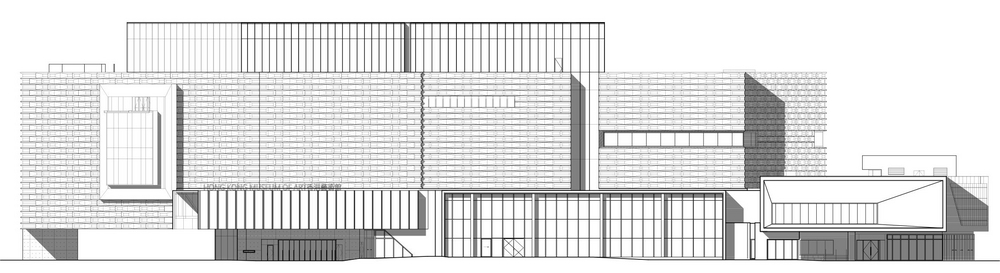
Renovation and extension of the Hong Kong Museum of Art

The Hong Kong Museum of Art used [tectiva] panels to create a 3D facade with prefabricated modules.

Materials used

See for yourself

See for yourself
See for yourself

Inspired for your next project? Click below to request a complimentary sample of the EQUITONE material range for yourself.