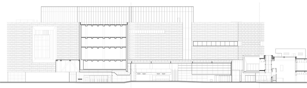
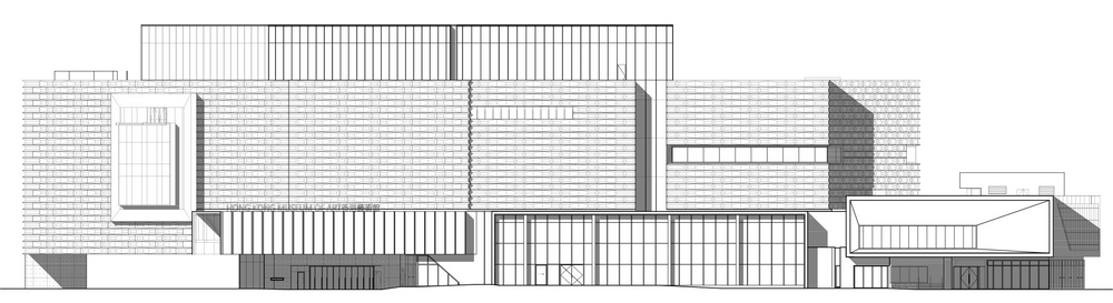
Museum of Arts Hong Kong

Projekti üksikasjad

Ehitise tüüp
Üldkasutatavad hooned
Rakenduse tüüp
Fassaad
Linn
Kowloon
Riik
Hongkong
Arhitekt
Architectural Services Department, Hong Kong SAR Government, Hong Kong, China
Värv
TE 10
Spetsiaalsed rakendused
3D, Eriline kuju
Fotograaf
iMAGE28, Daniel Wong

Projekti kirjeldus

Renovation and extension of the Hong Kong Museum of Art

The Hong Kong Museum of Art used [tectiva] panels to create a 3D facade with prefabricated modules.

Kasutatud materjalid

Proovige ise

Proovige ise
Proovige ise

Soovite kogeda EQUITONE’i võimalusi?