Museum of Arts Hong Kong

Detalj

Type bygning
Offentlige bygninger
Søknadstype
Fasade
Byen
Kowloon
Land
Hong Kong
Arkitekt
Architectural Services Department, Hong Kong SAR Government, Hong Kong, China
Fargekode
TE 10
Spesielle bruksområder
3D, Spesiell form
Foto
iMAGE28, Daniel Wong

Beskrivelse

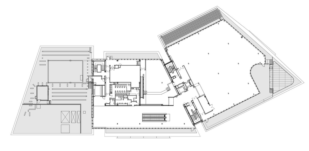
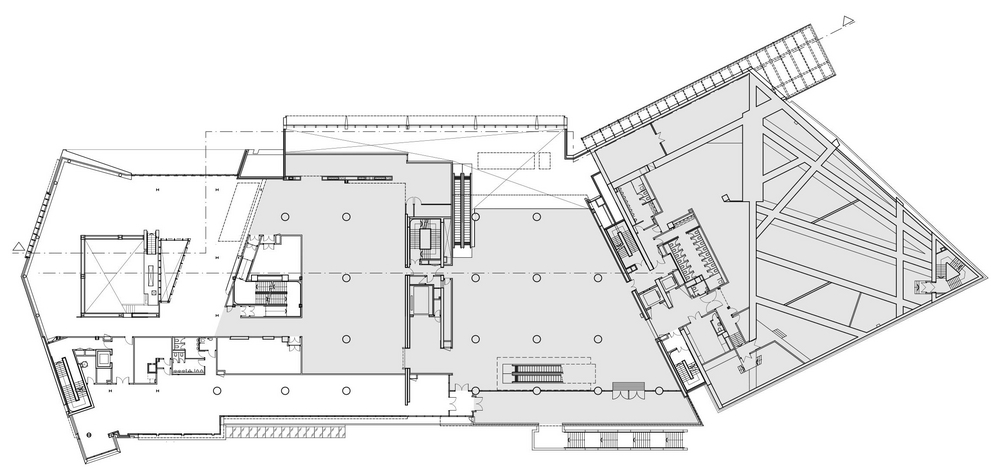
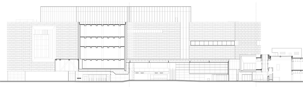
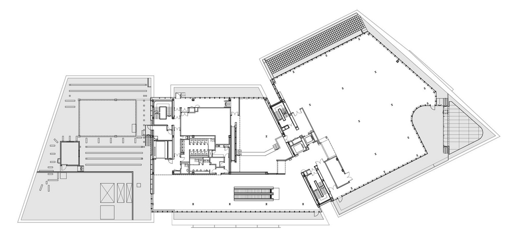
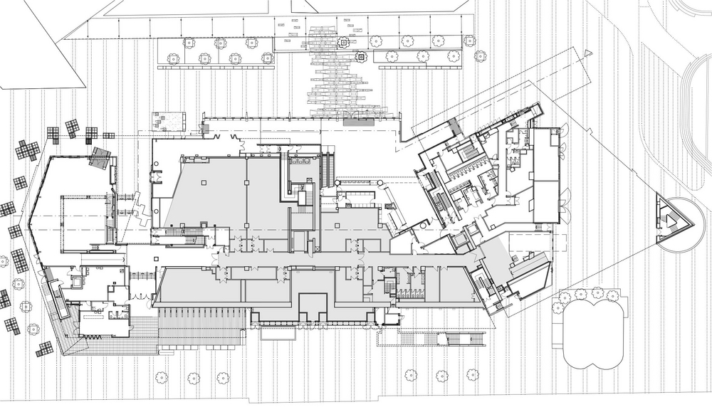
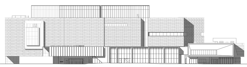
Museum of Art i Hongkong gjenåpnet 21. april 2022 etter fire år med intens renovering, som omfattet en utvidelse på 40 % av museets utstillingslokaler samt en tillegg på hele 10 000 kvadratmeter for nye gallerier og kunstverk. Som en betydelig del av renoveringen har fasaden fått nytt liv med gjennomfargede EQUITONE fasadematerialer av fibersement. Fasadeplatene danner et moderne tredimensjonalt design, bygget på prefabrikkerte moduler. Disse modulene er montert i ulike retninger for å skape et unikt og levende uttrykk som mest av alt minner om bølgene bygningen ser ut over. Hvert modul består dessuten av plater som er utnyttet til det ytterste for å unngå materialsvinn, med bærekraft i tankene. Modulene er deretter installert forskjøvet fra hverandre, noe som har resultert i en vakker skyggeeffekt som lett danser over bygningen og bringer bølgene til liv. Med fasadematerialene fra EQUITONE er det skapt et unikt og moderne bygningsdesign, som i seg selv gir en kunstnerisk opplevelse i bybildet.

Materialer brukt

Se selv

Se selv
Se selv

Lyst til å prøve EQUITONE -opplevelsen?