Museum of Arts Hong Kong
Project details
- Building Type
- Public Buildings
- Application Type
- Facade
- City
- Kowloon
- Country
- Hong Kong
- Architect
- Architectural Services Department, Hong Kong SAR Government, Hong Kong, China
- Colour
- [tectiva] TE10
- Special application
- 3D, Special shape
- Photographer
- iMAGE28, Daniel Wong
Project description
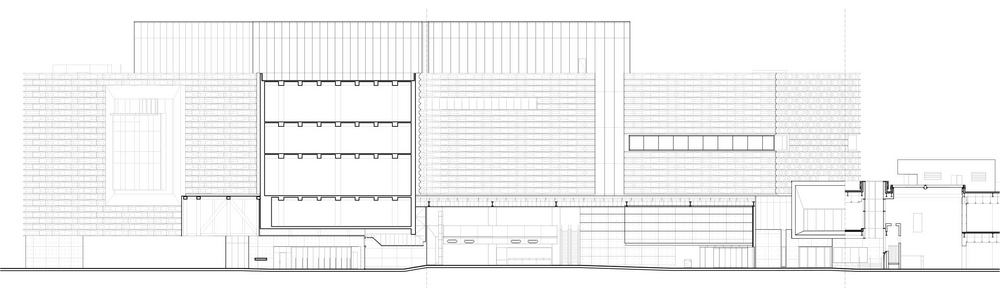
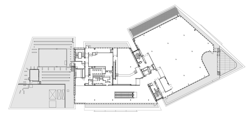
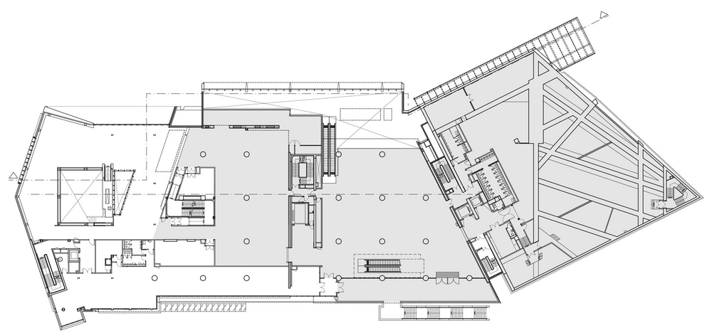
Renovation and extension of the Hong Kong Museum of Art
The Hong Kong Museum of Art used [tectiva] panels to create a 3D facade with prefabricated modules.