Museum of Arts Hong Kong

Sīkāka informācija

Ēkas tips
Publiskā ēka
Montāžas tips
Fasāde
Pilsēta
Kowloon
Valsts
Honkonga
Arhitekts
Architectural Services Department, Hong Kong SAR Government, Hong Kong, China
Krāsa
TE 10
Īpaši produktu pielietojumi
3D, Īpaša forma
Fotogrāfs
iMAGE28, Daniel Wong

Apraksts

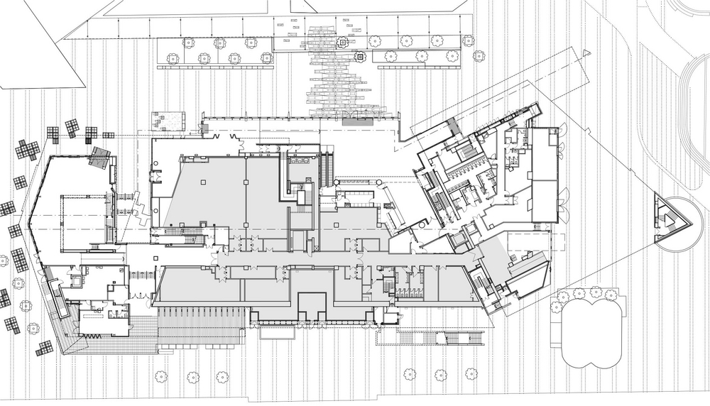
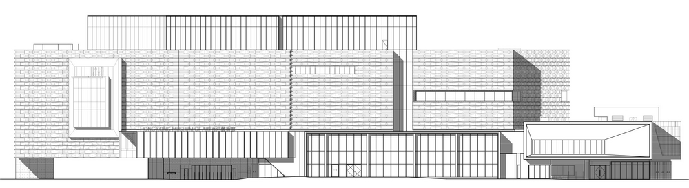
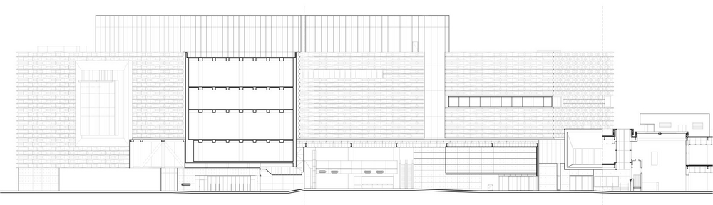
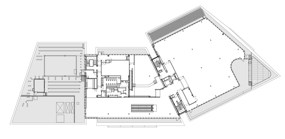
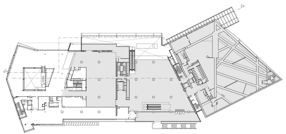
Renovation and extension of the Hong Kong Museum of Art

The Hong Kong Museum of Art used [tectiva] panels to create a 3D facade with prefabricated modules.

Izmantotie materiāli

Apskatiet pats

Apskatiet pats
Apskatiet pats

Vēlaties izjust EQUITONE pieredzi?